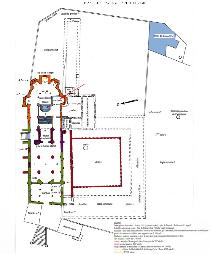
La sacristie

La sacristie a été déplacée dans l’absidiole sud au moins dès la fin du XVIIe siècle, dénaturant l’église romane.
Auparavant, elle devait être située dans le bâtiment de Lorette, au sud de l’église.

Cliquez sur l'image pour localiser le bâtiment sur le plan
© M.-E. Bruel

Partager la page