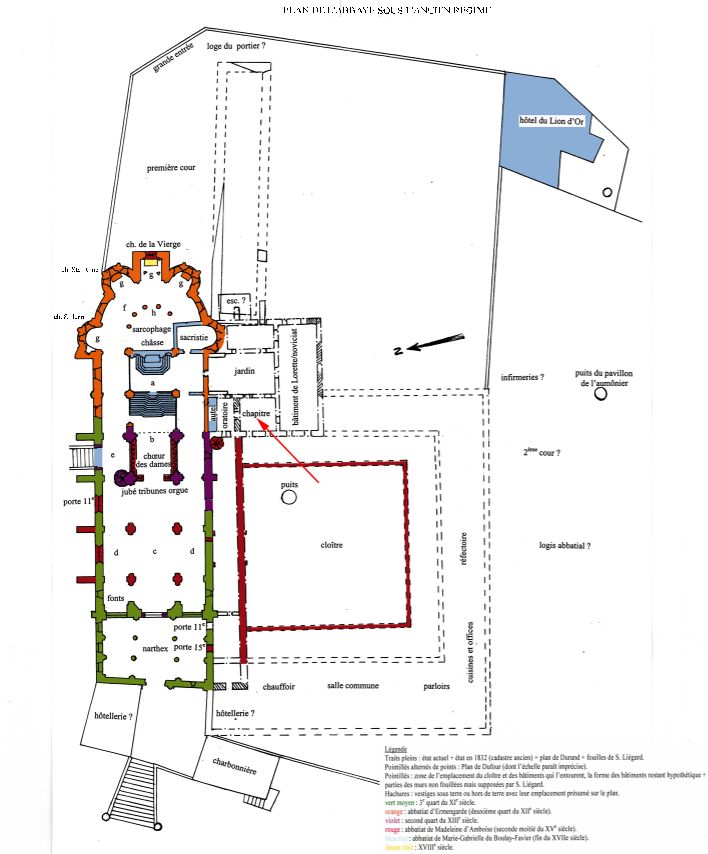
La salle du chapitre
La pièce était garnie de stalles ornées de petites figures de moines, identiques aux stalles de la fin du XVe siècle conservées dans l’église.
La pièce était garnie de stalles ornées de petites figures de moines, identiques aux stalles de la fin du XVe siècle conservées dans l’église.