Le noviciat*

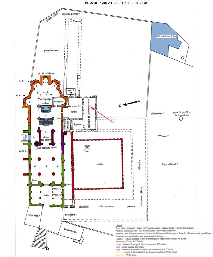
Sous l’Ancien Régime, le bâtiment de Lorette servait de noviciat1 aux religieuses.
La salle commune se trouvait au rez-de-chaussée et le dortoir à l’étage.

1 Dans une abbaye, quartier ou bâtiment réservé à l'usage des novices, et situé à l'écart des religieux ayant prononcé leurs voeux.

Partager la page