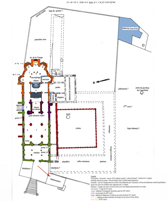
La charbonnière*

La « charbonnière » des religieuses ou le « charbonnier » servait peut-être aux nonnes à ranger leur charbon. Il comprenait une chambre haute et une chambre basse. A la Révolution, le charbonnier fut transformé en école de garçons. Il fut détruit en 1861 pour cause de vétusté et pour « dégager l’église ».

Partager la page