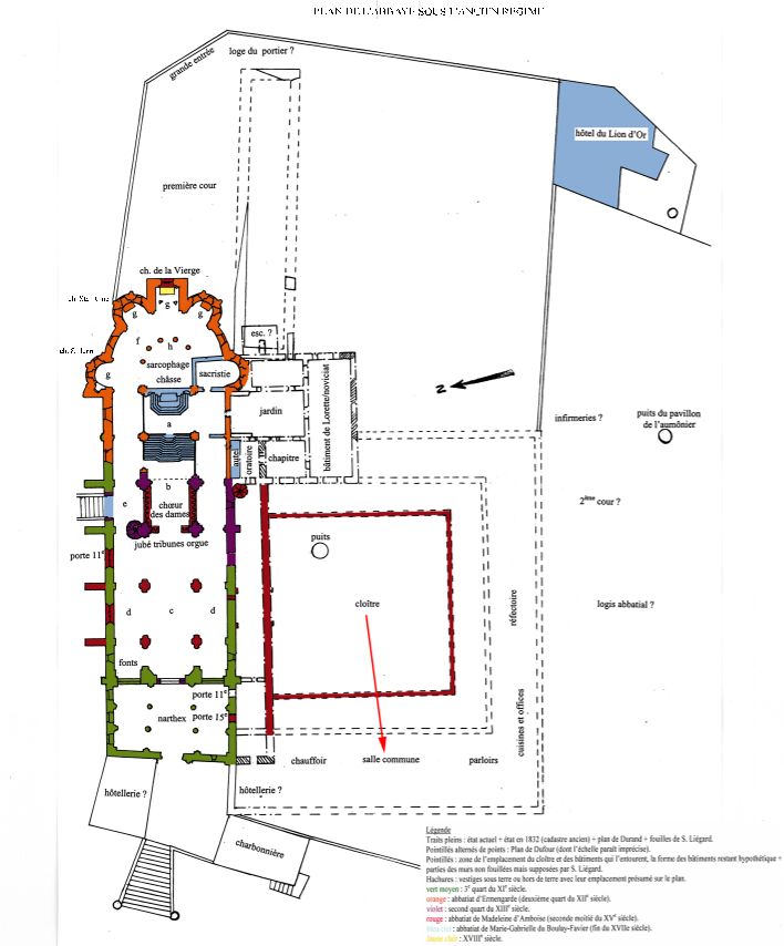
La salle commune*
La salle commune, où se faisait le travail commun, était aussi nommée salle de travail ou chambre de la communauté.
Elle devait être assez vaste.
La salle commune, où se faisait le travail commun, était aussi nommée salle de travail ou chambre de la communauté.
Elle devait être assez vaste.