Le cimetière du cloître

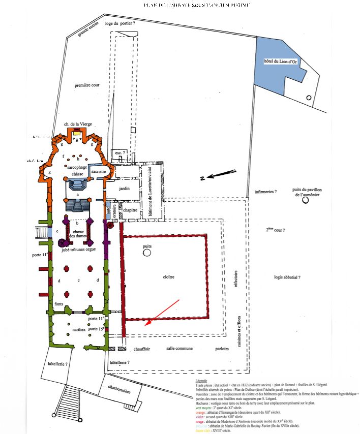
Vers 1815 fut découvert à l’emplacement du cloître du XVe siècle un sarcophage gravé (VIIe siècle ?) contenant le corps d’un homme. Il semble donc qu’un cimetière ait été situé à cet emplacement à l’époque mérovingienne, ou plus tard s’il s’agit là d’un remploi.

Partager la page