L’hôtellerie*
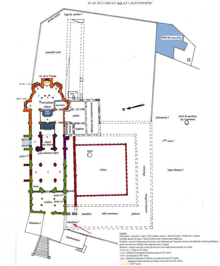
Elle comprenait un appartement bas et une chambre haute. Située à la suite du chauffoir des dames, l’hôtellerie se trouvait à l’entrée de l’église, côté sud. Il pourrait éventuellement s’agir du logis en face de la charbonnière.
Elle comprenait un appartement bas et une chambre haute. Située à la suite du chauffoir des dames, l’hôtellerie se trouvait à l’entrée de l’église, côté sud. Il pourrait éventuellement s’agir du logis en face de la charbonnière.