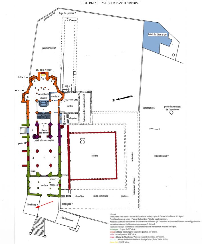
Logis à usage indéterminé (hôtellerie ?)*

L’usage de ce petit bâtiment n’est pas connu : on sait simplement qu’il s’agissait d’un logis. Peut-être était-ce l’hôtellerie ? A la Révolution, le bâtiment faisait office de prison. Il fut détruit en 1861 pour cause de vétusté et pour « dégager l’église ».

Partager la page