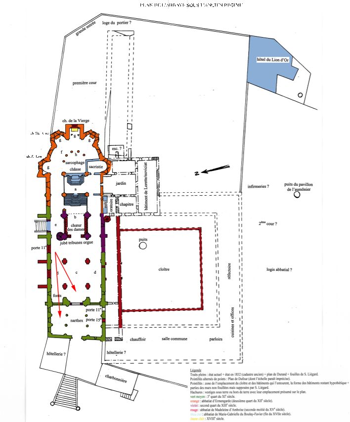
Cimetière religieux du narthex

La présence de deux sarcophages à l’intérieur du narthex depuis une date indéterminée tend à confirmer que l’endroit servit de crypte funéraire. Cette utilisation pouvait être fort ancienne, étant donné le rôle funéraire qu’avaient les narthex dans l'Eglise chrétienne dès le haut Moyen Age. En tout cas, au XVe siècle, le cimetière des nonnes se trouvait déjà dans le narthex. Et, à la fin de l’Ancien Régime, c’est dans sa crypte souterraine que reposaient toutes les religieuses, dans des cercueils de plomb qui furent profanés à la Révolution. Le narthex portait d’ailleurs le nom de « chœur des morts » ou « vieux chœur ». Madeleine d’Amboise en 1500 [1], Catherine de Baufremont en 1580, Marie-Gabrielle du Boulay-Favier en 1695 furent ainsi inhumées dans la crypte sous le narthex.

________________________________________
[1] Sa plaque tombale s’y trouvait (Gallia Christiana) et n’en fut arrachée qu’en 1793 parce qu’elle était surchargée d’« écussons ».

Partager la page