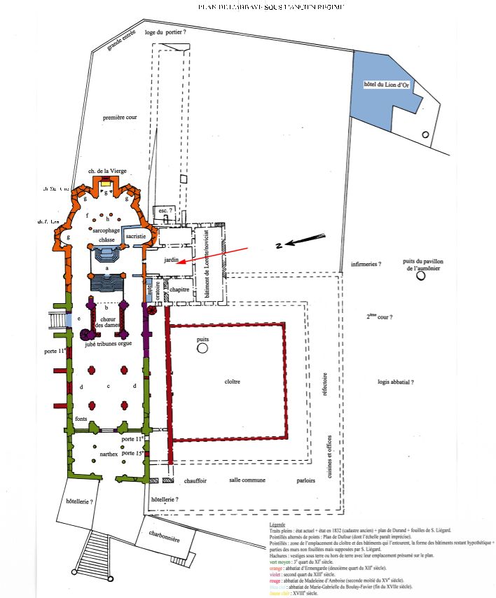
Le jardin de Lorette*
C’était un petit jardin situé au centre du bâtiment de Lorette, comme un petit cloître. Il était aussi appelé « parterre de Lorette ».
C’était un petit jardin situé au centre du bâtiment de Lorette, comme un petit cloître. Il était aussi appelé « parterre de Lorette ».