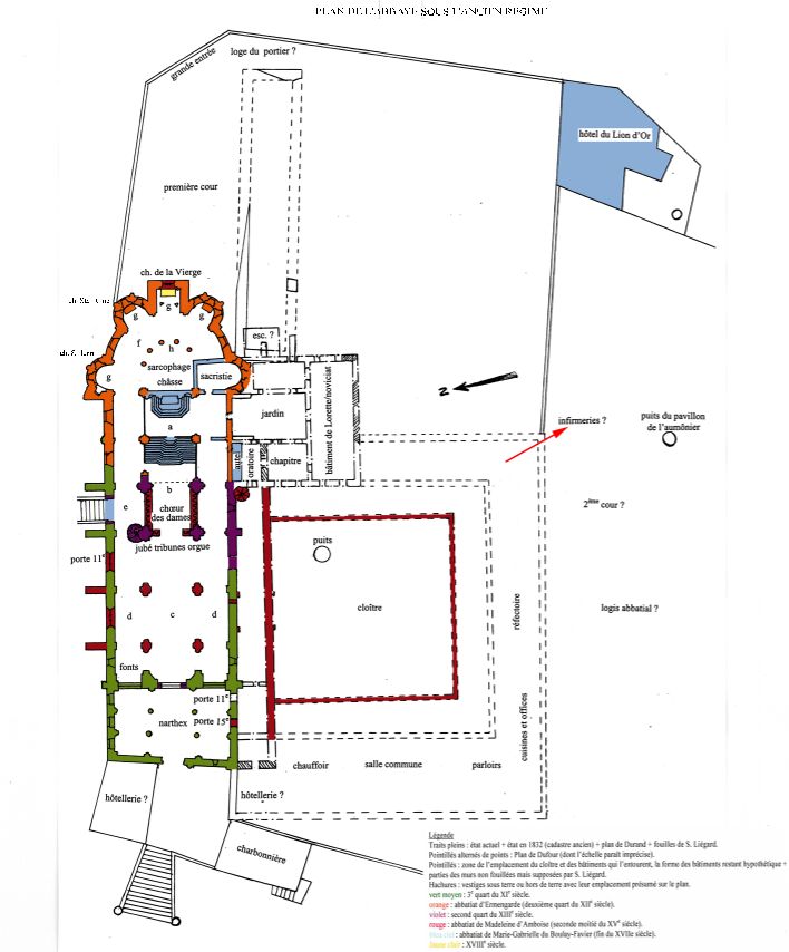
Les infirmeries*

On y soignait les malades, les infirmes et les religieux âgés. Située à l'écart pour éviter la contagion, elle était souvent à proximité du noviciat, non loin de la pharmacie et d'un oratoire.

Sous l’Ancien Régime, ce bâtiment déjà bien vétuste comportait au moins un étage, avec cinq lits pour les malades et trois pour les domestiques.

Partager la page