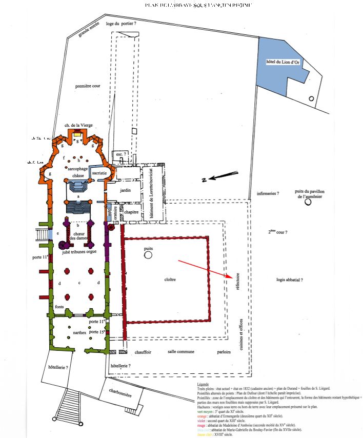
Le réfectoire*
C’était une pièce longue et vaste, occupant la majeure partie de l’aile sud.
A la veille de la Révolution, sept grands tableaux y étaient suspendus ; il y avait huit fauteuils et six chaises autour d’une table ronde.
C’était une pièce longue et vaste, occupant la majeure partie de l’aile sud.
A la veille de la Révolution, sept grands tableaux y étaient suspendus ; il y avait huit fauteuils et six chaises autour d’une table ronde.