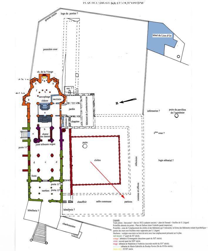
Le(s) parloir(s)

Le parloir était une pièce où les religieux clôturées pouvaient communiquer avec l'extérieur à travers des grilles.

En 1708, deux religieux de Saint-Maur qui y furent reçus en admirent la beauté. Ils précisent qu’il ne virent rien de l’abbaye, mais que « le parloir est fort beau », alors qu’ils ne trouvent l’église que « jolie ». La pièce devait donc comporter un certain raffinement architectural : il pourrait s’agir d’une construction gothique due à Madeleine d’Amboise. Six tableaux garnissaient cette pièce.

Partager la page