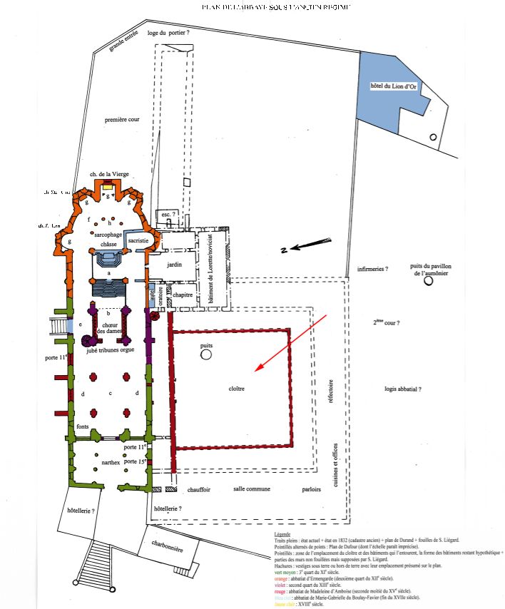
Le cloître

De style gothique flamboyant, le cloître avait la réputation d’être « la plus jolie chose de l’abbaye » (Annuaire de 1813). Il fut achevé avant 1497. Il était voûté et décoré de culs-de-lampe figurant principalement des tenants d'armes1 : homme coiffé d’un feutre, deux anges tenant un blason, riche bourgeois tenant un blason, vêtu d’une houppelande fourrée et arborant une bourse bien garnie, homme sauvage2 tenant deux blasons, ange tenant un blason, lévrier et chien camus luttant. Les blasons, martelés à la Révolution, sont aux armes de Madeleine d’Amboise.

1 Dans l'iconographie médiéviale, personnage ou animal qui, de manière conventionnelle, tient les blasons et les présente à la vue. Ce sont souvent licornes, lions, sirènes, demoiselles, hommes et femmes sauvages, ours et autres animaux.

2 Homme des bois couvert de poies ou de feuillages vivant à l'écart de toute civilisation. Il évoque la nature inquiétante de la forêt, qui passe pour être au Moyen Age le lieu par excellence de la vie sauvage. Lors du Bal des Ardents (1393), Charles VI s'était déguisé ainsi : son corps était couvert de poils collés avec de la poix, qui prit feu. le roi faillit être brûlé vif, ce qui participa à l'ébranlement de sa raison. Les hommes sauvages sont souvent utilisés comme tenants d'armes au Moyen Age.

Ange volant tenant un blason (cul-de-lampe du cloître de M. d’Amboise, achevé en 1497). © M.-E. Bruel
Partager la page